Big Bag
Entleerstation

mit Staplertraverse

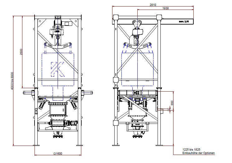
Big Bag Entleerstation

Die Entleerung von Big Bags stellt viele Betriebe vor praktische Herausforderungen. Häufig entstehen dabei ergonomisch ungünstige und unsichere Arbeitsbedingungen, insbesondere wenn keine geeignete Technik für das Handling der schweren Gebinde vorhanden ist. In der Praxis wird dann oft improvisiert – mit erhöhtem Unfallrisiko, erschwerter Handhabung und ineffizienten Abläufen im Produktionsprozess.

Die Big Bag-Entleerstation mit Staplertraverse von Kitzmann bietet hierfür eine wirtschaftliche und praxisgerechte Lösung. Die Beladung erfolgt komfortabel per Stapler, wodurch ein sicheres und einfaches Handling der Big Bags gewährleistet wird.

Durch eine variable Höhenverstellung sowie verschiedene Ausstattungsoptionen lässt sich die Station flexibel an unterschiedliche Anforderungen und Produktionsumgebungen anpassen. Das Ergebnis sind sichere Arbeitsbedingungen und ein effizienter, zuverlässiger Entleerprozess für Schüttgüter.

Merkmale

Vorteile

  • Zuführung des Big Bags erfolgt über eine, eigens für die Station, entwickelte Staplertraverse 
  • Gestellhöhe bis 4500 mm in geteilter Ausführung
  • Tragfähigkeit bis 2.000 kg
  • Produktabhängige Auswahl der Aufnahme- und Big Bag -Öffnungseinrichtungen 
  • Modularer Aufbau, Optional mit Waage, Blähmanschette, Einhandsackschnalle 
  • Vielfältige Austrags- und Fördersysteme, als Zuführung in den weiteren Produktionsprozess 
  • kosteneffiziente Lösung, rausparend einsetzbar
  • Verbesserung der Prozesssicherheit
  • Hohe Arbeitssicherheit

Unsere Lösungen für Ihre Anwendung:

Unsere Bereiche